反击式破碎机原理及性能优势介绍
反击式破碎机主要采用板锤撞击石料而破碎的原理,具有结构设计简单、配件、使用时间长、成品料粒型呈立方体、破碎流程少、设备投入少、能源消耗低等性能优势。详细解答
详细解答
由于近些年家不断提倡节能、环保,很多生产破碎机的厂家也在加强节能环保机械研发力度,颚式破碎机、圆锥破碎机、锤式破碎机、反击式破碎机都是常见的破碎机设备,这些机械各有所长,中誉鼎力主要来讲解下反击式破碎机的原理及性能优势有哪些。

反击式破碎机简介
反击式破碎机应用于抗压受力性能小于250MPa的各种矿石破碎,即使在破碎比较坚硬的石头时,其件的损耗也较低,因其进料口通常在500mm以下,主要用于中碎和细碎整形。主要用于冶金、化工、建材、水电等行业,适合为高速公路、铁路等高等道路提供上乘的砂石骨料。

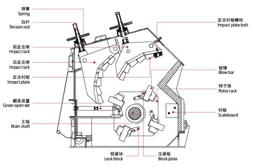
反击式破碎机原理
反击式破碎机(反击破)利用高速运动转子上的板锤,对送入破碎腔内的物料产生高速冲击而破碎,且使已破碎的物料沿切线方向以高速抛向破碎腔另一端的反击板,再次被破碎,然后又从反击板反弹到板锤,在此过程中,物料间还会互相撞击。由于物料受到板锤的打击、与反击板的冲击以及物料相互之间的碰撞,物料不断产生裂缝,松散而致粉碎。当物料粒度小于反击板与板锤之间的缝隙时,被排出机外。

反击式破碎机性能优势
1、结构设计简单,除了板锤和衬板外,几乎没有其他易损零件,机械修护简单、成本。
2、采用键锥套联接的转子体、的板锤、齿形反击衬板等,提高设备使用寿命。
3、拥有涡旋粉碎腔和三段破碎区,成品料形状呈立方体,简化破碎流程,减少设备投入。
4、反击式破碎机在保障生产能力的同时,减少了能源的消耗,缩小了对环境的污染。

















